Přejít k hlavnímu obsahu

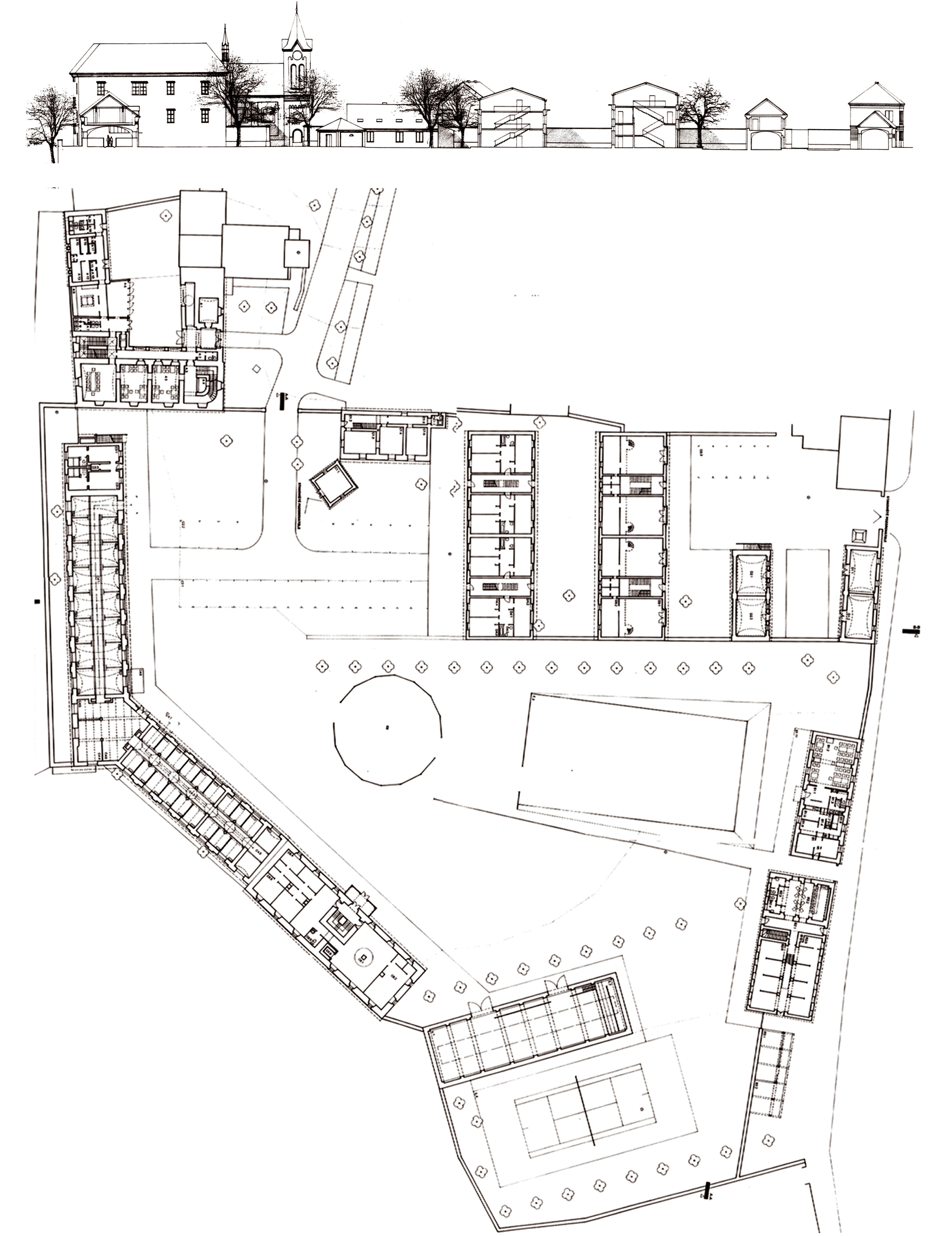
Rekonstrukce a dostavba areálu Chvalského zámku v Horních Počernicích

Typ projektu
Rok zpracování
1996, zvláštní odměna
Spolupráce
Ing. Lucie Moučková

Základní ideou je vytvořit komplexně vybavený, celoročně využívaný areál s koňmi. Areál slouží k hiporehabilitaci, která je doplněna odborným lékařským dohledem a jinými formami rehabilitace. Mimo to areál nabízí komplexní služby v podobě ubytování, stravování, kulturního a sportovního vyžití.

Stávající urbanistická struktura areálu je doplněna dvěma nově navrženými objekty v severozápadní části území. Objekty vymezují hlavní prostory areálu. Ten je rozdělen do třech základních provozních celků:

  • zámek (obřadní síň, apartmány, vinný sklep, restaurant, salonky ),
  • dvůr ( nebytové prostory, obchody, byty),
  • vlastní hiporehabilitační areál (stáje, jízdárna, parkur, kruhová aréna, rehabilitační centrum, ubytovna, hospoda).