Přejít k hlavnímu obsahu

Muzeum T. G. Masaryka - Lány

Typ projektu
Ideová soutěž
1997

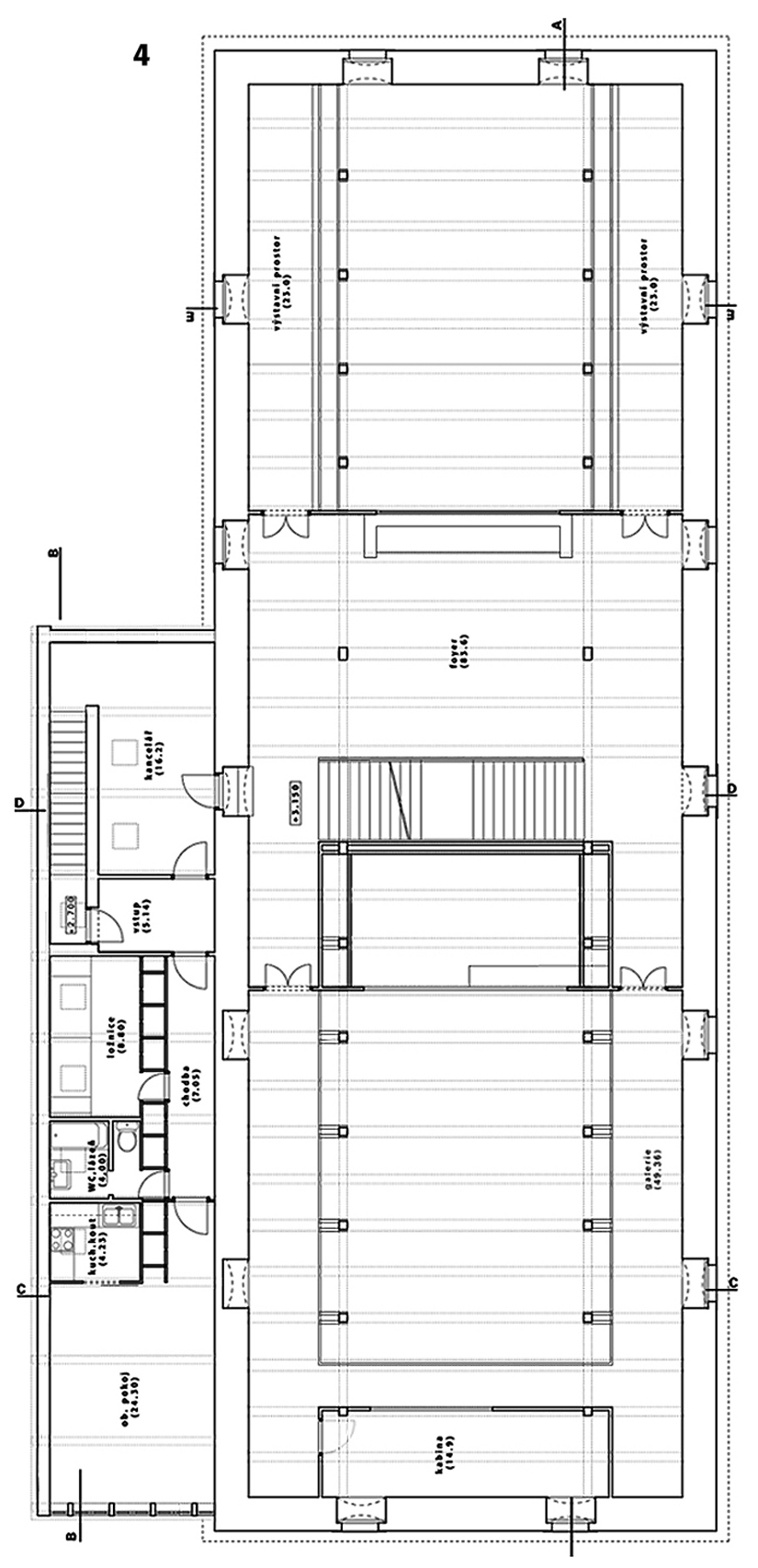
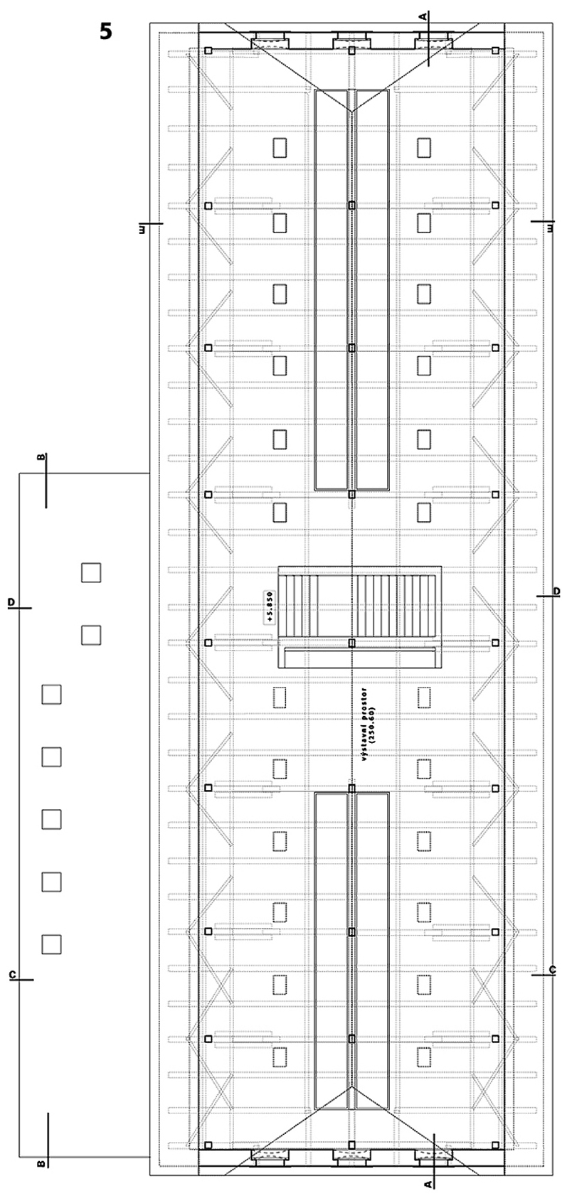
Budova špýcharu je dnes již začleněna do urbanistické struktury čtvrti rodinných domků. Pohledově se uplatňuje zejména ve směru od hlavní komunikace vedoucí k Lánskému zámku. Návrh rehabilituje sýpku k novému účelu muzea a zároveň zachovává původní halovou koncepci budovy. Vedlejší požadované provozy - byt a zázemí, jsou vyčleněny mimo objekt do dvoupodlažního přístavku.