Přejít k hlavnímu obsahu

Kolonie Jeruzalém v Lounech - ideová stude přístavby domu

Typ projektu
Rok zpracování
2023 v rámci studie o dělnických koloniích v Lounech

V letech 1931 - 1932 se staví v Lounech kolonie dělnických domů “Jerusalem” podle projektu architekta Josefa Hausenblase (1907-1943). Jedná se o jednu z prvních realizací tohoto architekta, který studoval na oddělení architektury slavné školy Bauhaus v letech 1927 - 1929.

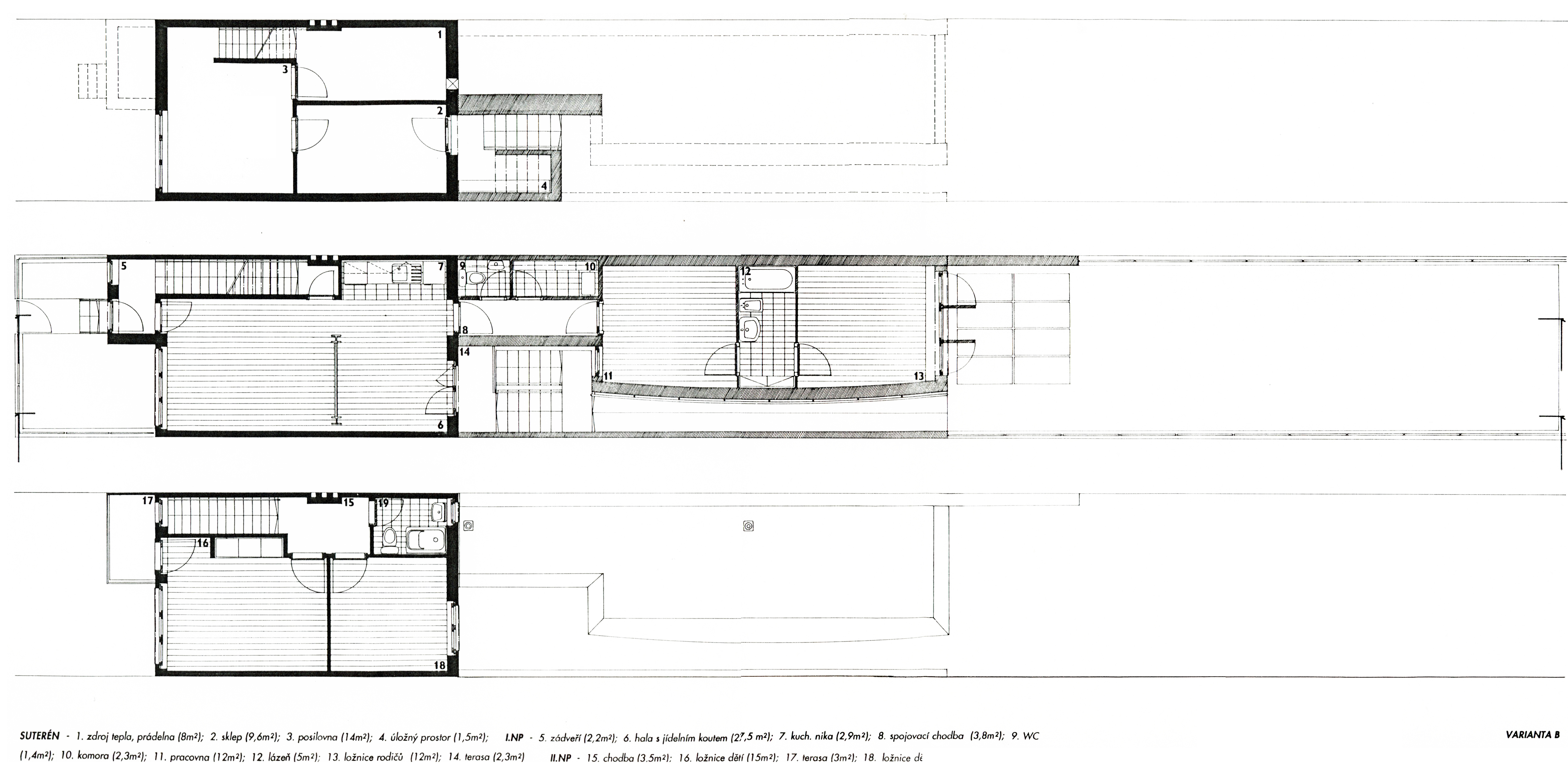
Na jihovýchodním okraji města navrhl jednostrannou uliční zástavbu v podobě 26 převážně řadových domků. Patrový a podsklepený dům v běžné sekci zabírá minimální zastavěnou plochu (cca 5×8m). Pokoj a kuchyň v nástupním patře spojuje jednoramenné schodiště s ložnicovým patrem a koupelnou.

Cílem řešení je prověřit možnosti přístavby domu směrem do cca 30m hluboké zahrady a zvětšit tak prostorový standard o hygienické zázemí, pracovnu a ložnici. Přístavba je jednopodlažní, protáhlá, se střešní zahradou. Mezi přístavbou a domem je navržen spojovací krček, který ze zahrady přes dvouramenné schodiště zpřístupňuje suterén s nástupním podlažím. Z důvodů vizuálního propojení nástupního patra se zahradou je 9m dlouhá zeď přístavby konkávně prohnuta tak, aby opticky došlo k jejímu zkrácení. Prohnutá zeď je hlavním výtvarným prvkem návrhu. Fasáda z kameniny s barevnou kombinací zrna bude v budoucnu porostlá břečťanem.

Uliční fasáda je navržena k citlivé obnově podle původního projektu včetně oplocení.